Detalii tehnice:
Putere: 2-5 kW
Randament: 84.8%
Consum gaz: 365-836 L/h
Necesar: 230V
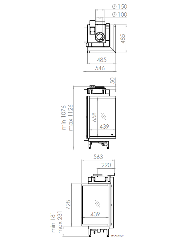
Diametru evacuare: 150/100 mm
Greutate: 70 kg
Material: otel
Culoare: negru
Paco DRU Eco Wave este un focar pe gaz flexibil, care poate fi instalat pe fiecare parte a unui colț sau transformat într-un element independent și remarcabil al camerei. Acesta este disponibil în versiuni “inset” sau “outset”, în culorile cadrului alu-metalice sau antracit. Are o putere termică de 5,3 kW și o eficiență de 76%.
Variante:
| Paco RCH, ceraglass | 5260.00 euro |
| Paco RCH, ceraglass, PowerVent-02 | 6319.00 euro |
- Power vent = ventilator exhaustare fortata
- Ceraglass = perete oglinda
DOTĂRI STANDARD
1. ECO WAVE
Un focar pe gaz Dru DRU Eco Wave oferă un model al flăcărilor atractiv, chiar și la o setare mai mică a căldurii. Sistemul Eco Wave asigură flăcări naturale în mișcare, chiar și atunci când reduceți puterea. Pe lânga faptul că sunt frumoase și ușor de operat, Eco Wave este de asemenea foarte economic. Puteți gestiona modelul flăcării prin setarea nivelului de căldură dorit, utilizând telecomanda inteligentă, care funcționeaza și ca termostat.
Caracteristicile unice ale Eco Wave (exclusiv DRU) sunt:
- Putere termică controlabilă, reglabilă continuu
- Model de flacară reglabil
- Flăcări înalte cu consum redus de gaz
- Aplicație pentru funcționare prin smartphone sau tabletă
2. Flacara VARIO
Arzătorul Vario, dezvoltat de DRU, conferă focului mai multe dimensiuni cu un design unic în zig-zag. Mai mult decât atât, cu tehnologia DRU Eco Wave, vă păstrați un model de flacără frumos pe întreaga lățime a focarului, chiar și la o setare mai mică de căldură.
OPȚIUNI
POSIBILITATE DE AMPLASARE ORIUNDE POWERVENT
Puteți instala un focar pe gaz exact în felul în care vă doriti: fie lângă un coș de fum mai vechi, fie lângă un perete exterior, fie oriunde în cameră, datorită tehnologiei POWERVENT.

