Permite canalizarea aerului până la 8 metri, optimizând cei 10 kW de putere nominală pentru a încălzi și încăperi adiacente. Canalizarea poate fi dezactivată și reglată automat printr-un termostat ambiental, asigurând temperaturi constante, reducerea consumului și performanțe optimizate.
- Ușă focar, cameră de ardere și arzător din fontă
- Schimbător de căldură cu fascicul tubular
- Compartiment pentru cenușă
- Ventilație cu sistem PRO AIR SETUP
- Gestionarea temperaturii ambientale cu funcția AUTOMATIC
- Senzor de nivel pentru peleți
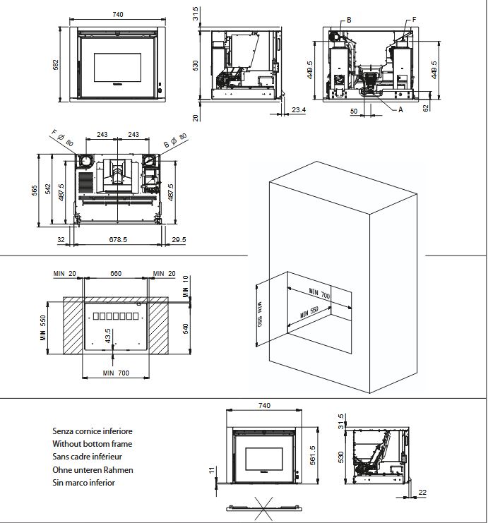
- Posibilitate de ieșire pentru evacuarea gazelor arse: superioară
- Canalizare cu motor dedicat până la 8 metri, cu posibilitate de reglare prin termostat și dezactivare + AIR ZONE CONTROL
- Posibilitate de ieșire pentru canalizare (Ø80 mm): posterioară
- Sistem simplificat pentru extragerea completă a șemineului
- Mânere de ridicare pentru a facilita manipularea
- Easy Setup
- Easy Control
- Rezistență ceramică
- Funcție FPC Plus
- Control prin telecomandă portabilă, cu funcție de termostat
Optional:
-
Modul Wi-Fi – 259
- Kit de suport – 332
-
Suport frontal pentru încărcarea peleților – 270
- Kit alimentare peleți sus/lateral – 505

