• Ultimele montaje
  • Contact
  • Ultimele montaje
  • Contact
Seminee Bucuresti
Selectați categoria
  • Selectați categoria
  • COSURI DE FUM
    • Cosuri de fum Ceramice
  • Cuptoare pe lemne
  • Focare centrala
    • Focar fara kit termic premontat
    • Focare cu kit termic premontat
  • Focare centrala pe peleti
  • Focare pe peleti
  • Focare semineu pe lemne
    • Focare cu 2 geamuri
    • Focare cu 3 geamuri
    • Focare cu 4 geamuri
    • Focare cu geam drept
    • Focare cu geam prismatic
    • Focare cu geam semirotund
    • FOCARE DESCHISE
    • Focare tip tunel
  • Focare Ventilate
  • GRATARE-CUPTOARE
    • Accesorii Fire Pit
    • Accesorii gratare modulare
    • Gratare construite
    • Gratare Fire Pit
    • Gratare si cuptoare metalice
    • Gratare si cuptoare modulare
  • Seminee cu vapori de apa
  • Seminee de exterior
  • Seminee Electrice
  • Seminee Metalice
  • Seminee modulare
  • Seminee pe Bioetanol
    • Accesorii pentru seminee pe bioetanol
    • Seminee Bioetanol
  • Seminee pe gaz
    • Seminee pe gaz Dru
    • Seminee pe gaz Planika
  • Seminee pe lemne
    • Seminee clasice
    • Seminee Design
    • Seminee Moderne
    • Seminee Rustice
  • SOBE
    • Sobe centrala pe lemne
    • Sobe centrala pe peleti
    • Sobe pe lemne
    • Sobe pe peleti
  • Ultimele montaje
  • HOME
  • CATEGORII PRODUSE
    • Seminee pe lemne
      Seminee Rustice

      Seminee Rustice (131)

      Seminee Design

      Seminee Design (122)

      Seminee clasice

      Seminee clasice (75)

      Seminee Moderne

      Seminee Moderne (179)

      • Seminee Moderne
      • Seminee Clasice
      • Seminee Design
      • Seminee Rustice
    • Seminee modulare
    • Seminee pe gaz
      • Seminee pe gaz Planika
      • Seminee pe gaz Dru
    • Seminee pe Bioetanol
      • Accesorii pentru seminee pe bioetanol
      • Seminee Bioetanol
    • Seminee Electrice
    • Seminee Metalice
    • Seminee de exterior
    • Seminee cu vapori de apa
    • Focare semineu pe lemne
      Focare cu geam drept

      Focare cu geam drept (270)

      Focare cu 2 geamuri

      Focare cu 2 geamuri (260)

      Focare cu 3 geamuri

      Focare cu 3 geamuri (73)

      Focare cu 4 geamuri

      Focare cu 4 geamuri (5)

      Focare cu geam prismatic

      Focare cu geam prismatic (11)

      Focare cu geam semirotund

      Focare cu geam semirotund (15)

      FOCARE DESCHISE

      FOCARE DESCHISE (19)

      Focare tip tunel

      Focare tip tunel (63)

      • Focare cu geam drept
      • Focare cu 2 geamuri
      • Focare cu 3 geamuri
      • Focare cu 4 geamuri
      • Focare cu geam semirotund
      • Focare deschise
    • Focare semineu pe peleti
    • Focare centrala pe lemn
      • Focar fara kit termic premontat
      • Focare cu kit termic premontat
    • Focare centrala pe peleti
    • Focare Ventilate
    • SOBE
      Sobe pe lemne

      Sobe pe lemne (388)

      Sobe centrala pe lemne

      Sobe centrala pe lemne (7)

      Sobe pe peleti

      Sobe pe peleti (85)

      Sobe centrala pe peleti

      Sobe centrala pe peleti (26)

      • Sobe pe lemne
      • Sobe centrala pe lemne
      • Sobe pe peleti
      • Sobe Centrala pe peleti
    • GRATARE-CUPTOARE
      Cuptoare pe lemne

      Cuptoare pe lemne (11)

      Gratare construite

      Gratare construite (39)

      Gratare si cuptoare metalice

      Gratare si cuptoare metalice (15)

      Accesorii gratare modulare

      Accesorii gratare modulare (44)

      Accesorii Fire Pit

      Accesorii Fire Pit (43)

      Gratare si cuptoare modulare

      Gratare si cuptoare modulare (30)

      Gratare Fire Pit

      Gratare Fire Pit (44)

      • Gratare construite
      • Gratare si cuptoare metalice
      • Gratare si cuptoare modulare
      • Accesorii gratare modulare
      • Gratare FirePit
      • Accesorii FirePit
    • COSURI DE FUM
      • Cos De Fum Schiedel UNI
      • Cos De Fum Ceramic LEIER
  • Bine de stiut
  • Ultimele montaje
  • Despre noi
  • Contact
Seminee Bucuresti
  • HOME
  • CATEGORII PRODUSE
    • Seminee pe lemne
      Seminee Rustice

      Seminee Rustice (131)

      Seminee Design

      Seminee Design (122)

      Seminee clasice

      Seminee clasice (75)

      Seminee Moderne

      Seminee Moderne (179)

      • Seminee Moderne
      • Seminee Clasice
      • Seminee Design
      • Seminee Rustice
    • Seminee modulare
    • Seminee pe gaz
      • Seminee pe gaz Planika
      • Seminee pe gaz Dru
    • Seminee pe Bioetanol
      • Accesorii pentru seminee pe bioetanol
      • Seminee Bioetanol
    • Seminee Electrice
    • Seminee Metalice
    • Seminee de exterior
    • Seminee cu vapori de apa
    • Focare semineu pe lemne
      Focare cu geam drept

      Focare cu geam drept (270)

      Focare cu 2 geamuri

      Focare cu 2 geamuri (260)

      Focare cu 3 geamuri

      Focare cu 3 geamuri (73)

      Focare cu 4 geamuri

      Focare cu 4 geamuri (5)

      Focare cu geam prismatic

      Focare cu geam prismatic (11)

      Focare cu geam semirotund

      Focare cu geam semirotund (15)

      FOCARE DESCHISE

      FOCARE DESCHISE (19)

      Focare tip tunel

      Focare tip tunel (63)

      • Focare cu geam drept
      • Focare cu 2 geamuri
      • Focare cu 3 geamuri
      • Focare cu 4 geamuri
      • Focare cu geam semirotund
      • Focare deschise
    • Focare semineu pe peleti
    • Focare centrala pe lemn
      • Focar fara kit termic premontat
      • Focare cu kit termic premontat
    • Focare centrala pe peleti
    • Focare Ventilate
    • SOBE
      Sobe pe lemne

      Sobe pe lemne (388)

      Sobe centrala pe lemne

      Sobe centrala pe lemne (7)

      Sobe pe peleti

      Sobe pe peleti (85)

      Sobe centrala pe peleti

      Sobe centrala pe peleti (26)

      • Sobe pe lemne
      • Sobe centrala pe lemne
      • Sobe pe peleti
      • Sobe Centrala pe peleti
    • GRATARE-CUPTOARE
      Cuptoare pe lemne

      Cuptoare pe lemne (11)

      Gratare construite

      Gratare construite (39)

      Gratare si cuptoare metalice

      Gratare si cuptoare metalice (15)

      Accesorii gratare modulare

      Accesorii gratare modulare (44)

      Accesorii Fire Pit

      Accesorii Fire Pit (43)

      Gratare si cuptoare modulare

      Gratare si cuptoare modulare (30)

      Gratare Fire Pit

      Gratare Fire Pit (44)

      • Gratare construite
      • Gratare si cuptoare metalice
      • Gratare si cuptoare modulare
      • Accesorii gratare modulare
      • Gratare FirePit
      • Accesorii FirePit
    • COSURI DE FUM
      • Cos De Fum Schiedel UNI
      • Cos De Fum Ceramic LEIER
  • Bine de stiut
  • Ultimele montaje
  • Despre noi
  • Contact
Click to enlarge
Prima paginăSeminee de exterior Ruegg Surprise
Previous product
Violino Tunnel 55x98 8,342.00 €
Înapoi la produse
Next product
Semineu r Rüegg - Tilia 7,700.00 €

Ruegg Surprise

2,892.00 €

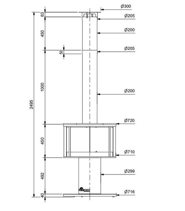
Specificatii tehnice:

  • Dimensiuni exterioare (lățime × înălțime): 71 × 249 cm

  • Diametrul locului pentru foc: 55 cm

  • Greutate totală: 140 kg

  • Diametrul exterior al țevilor de racordare:

    • Suprafață superioară: 19,6 cm

    • Suprafață inferioară: 29,2 cm

  • Sarcină maximă admisă pe țevile de racord: 20 kg

  • Lungime maximă a țevilor de evacuare a fumului: 200 cm

Schita tehnica

  • Descriere
Descriere

Cu noul șemineu în aer liber Ruegg Surprise , posibilitățile sunt surprinzătoare și aproape nesfârșite.

  • Practic, nu există formarea fumului
  • Nu există jar care zboară în mod neregulat datorită panourilor care sunt ușor de deschis
  • Poate fi asamblat rapid și rapid (în greutate totală aproximativ 122 kg)
  • Conductă de ardere disponibilă în diferite înălțimi
  • 6 plăci de grătar disponibile în oțel inoxidabil sau în sticlă ceramică
  • Farfuriile se pot încălzi până la 250 până la 300 de grade în funcție de volumul de lemn

* Modulul de bază include: cadru de bază din oțel corten cu șemineu de foc, capac și 1 m țeavă, bază și țeavă la bază, 6 set de plăci de grătar din oțel inoxidabil sau din sticlă ceramică.

Produse similare

Close

Erta 56 Outside

1,119.00 €
Close

Katami cu picior Outside

2,128.00 €
Close

Cumbal Maxi Outside

649.00 €
Close

Tavurvur 1200 Outside

685.00 €

UTILE

  • Cum aleg un semineu?
  • Noutati
  • Parteneri
  • Garantii

INFORMATII PRODUSE

  • Focare semineu pe lemne
  • COSURI DE FUM
  • SOBE

TEHNIC

  • Focare semineu pe lemne
  • COSURI DE FUM
  • SOBE

DESPRE NOI

  • Contact
  • Cariere
  • Despre noi
  • Termeni si conditii
Facebook Youtube Instagram TikTok
SAL Online Dispute Resolution
© 2025. Toate drepturile rezervate.
Pentru imbunatatirea experientei utilizatorului, acest website foloseste cookie-uri. Vom presupune ca esti de acord cu acest lucru, dar poti refuza daca doresti.

Setari cookieAccepta
Intainte de a continua navigarea, te rugam sa consulti politica de confidentialitate si politica de utilizare cookies.
Politica de confidentialitate si utilizare cookie-uri

Sumar politica cookie

Acest site utilizează module cookie pentru a vă îmbunătăți experiența în timp ce navigați pe site. Din aceste cookie-uri, cookie-urile clasificate ca strict necesare sunt stocate în browser-ul dumneavoastra, deoarece sunt esențiale pentru funcțiile de bază ale site-ului. De asemenea, folosim module cookie statistice care ne ajută să analizăm și să înțelegem cum utilizați acest site web. Aceste cookie-uri vor fi stocate în browser-ul dumneavoastra numai cu acordul dumneavoastra. De asemenea, aveți opțiunea de a renunța la aceste cookie-uri. Renunțarea la unele dintre aceste cookie-uri poate avea un efect negativ asupra experienței dumneavoastra de navigare.


Politica completa poate fi accesata aici: politica cookie .


Pentru mai multe informatii despre prelucrarea datelor personale, te rugam sa consulti politica de confidentialitate.


Necessary
Întotdeauna activate

Aceste cookies sunt necesare pentru functionarea site-ului web si nu pot fi dezactivate in sistemele noastre. In browser-ul pe care il folosesti, poti seta blocarea sau primirea unui avertisment in legatura cu aceste cookies, dar in acest caz, anumite parti ale site-ului pot sa nu functioneze.

SALVEAZĂ ȘI ACCEPTĂ
Scroll To Top